3131 N Water StreetDecatur, IL 62526
Due to the health concerns created by Coronavirus we are offering personal 1-1 online video walkthough tours where possible.




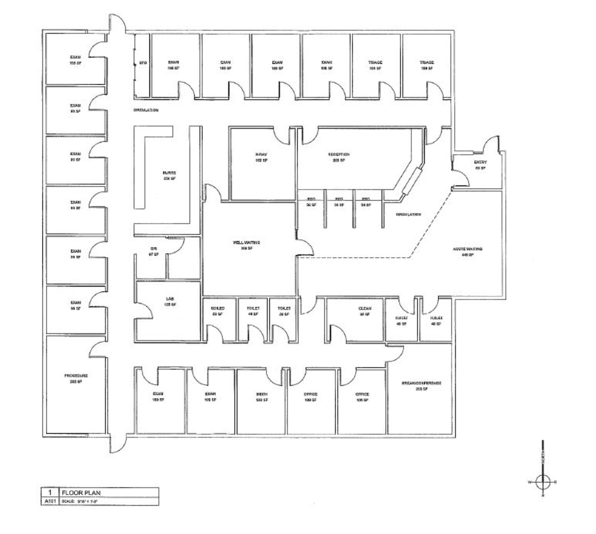
Strategically located along Route 51 Business North & South, this 6,200 SF freestanding building is a rare opportunity for medical, office, or specialty use in a high-visibility corridor. Previously operated as a medical express care facility, the property is ideally configured for healthcare or professional services. This modern facility sits on a 1.17-acre lot and was constructed in 2008 with a functional layout tailored for patient/client flow and staff efficiency. The building is surrounded by retail and service anchors including Brentwood Village Shopping Center, home to Planet Fitness, Kroger, Bob Evans, and Culver's-providing significant consumer draw to the area. Property Features: 12 exam rooms 6 restrooms Spacious waiting/reception area with multiple registration stations Dedicated nurses' station/work area 2 private offices X-ray room Break/conference room Ample parking with 42 spaces Visibility & Traffic: Rt 51 South: 10,000 vehicles/day Rt 51 North: 9,500 vehicles/day Pershing Rd at Rt 51: 19,800 vehicles/day
| 3 months ago | Listing updated with changes from the MLS® | |
| 3 months ago | Status changed to Active | |
| 3 months ago | Listing first seen on site |
Based on information submitted to the MLS GRID as of 2025-11-05 10:25 PM UTC. All data is obtained from various sources and may not have been verified by broker or MLS GRID. Supplied Open House Information is subject to change without notice. All information should be independently reviewed and verified for accuracy. Properties may or may not be listed by the office/agent presenting the information.
Last checked: 2025-11-05 10:25 PM UTC
MRED DMCA Copyright Information Copyright © 2025 Midwest Real Estate Data LLC. All rights reserved.




Did you know? You can invite friends and family to your search. They can join your search, rate and discuss listings with you.