4015 N Albany AvenueChicago, IL 60618
Due to the health concerns created by Coronavirus we are offering personal 1-1 online video walkthough tours where possible.




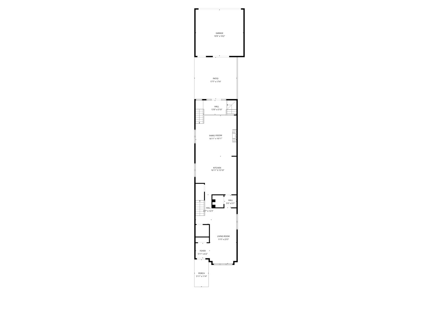
Wonderful opportunity to purchase a brand-new home by renowned developer GB Construction. This residence is filled with luxurious finishes, including custom millwork throughout, vaulted and coffered ceilings, heated floors, and a thoughtfully designed kitchen with solid wood cabinetry, quartz countertops, and panel-ready appliances. The deep basement offers impressive ceiling height and large windows that flood the lower level with natural light. Enjoy a very private backyard complete with a party door leading to your two-car garage. Don't miss the chance to make this stunning new construction yours before the holidays! CABINETS AND TILE HAVE BEEN INSTALLED. COUNTERTOPS COMING NEXT WEEK!
| yesterday | Listing updated with changes from the MLS® | |
| 4 weeks ago | Status changed to Active | |
| a month ago | Listing first seen on site |
Based on information submitted to the MLS GRID as of 2025-11-07 05:52 AM UTC. All data is obtained from various sources and may not have been verified by broker or MLS GRID. Supplied Open House Information is subject to change without notice. All information should be independently reviewed and verified for accuracy. Properties may or may not be listed by the office/agent presenting the information.
Last checked: 2025-11-07 05:52 AM UTC
MRED DMCA Copyright Information Copyright © 2025 Midwest Real Estate Data LLC. All rights reserved.




Did you know? You can invite friends and family to your search. They can join your search, rate and discuss listings with you.